HEVA
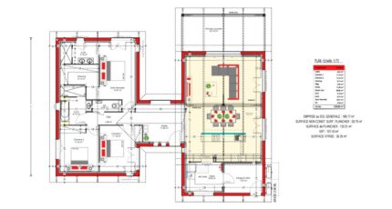
Plan maison 5 pièces 3 chambres Surface maison 128 m2
Traditionnel charme et élégance provençale !
Découvrez cette magnifique maison en H, où l'élégance intemporelle de la pierre se mêle à la chaleur du bois.
Son architecture harmonieuse s'ouvre sur une vaste terrasse couverte, idéale pour profiter des beaux jours en toute saison. À l'intérieur, les volumes généreux et la hauteur sous plafond créent une atmosphère moderne lumineuse et aérée, sublimée par des matériaux et des finitions raffinée.
Inspirée du charme provençal, cette demeure conjugue tradition et modernité, offrant un cadre de vie chaleureux et convivial. Un véritable havre de paix, entre caractère et douceur de vivre.



