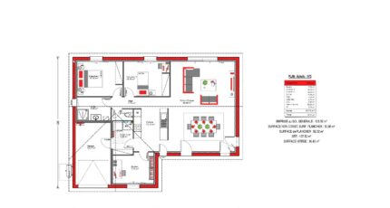
ILLIADE 90m² 2 chambres garage_Intégré
Plan maison 3 pièces 2 chambres Surface maison 90 m2
A la fois intime et ouvert sur le jardin !
Cette maison accueillera votre piscine ou terrasse afin de concentrer la vie familiale autour de cet univers.
Son aménagement permet de jouer avec des vues traversant les espaces jour et nuit intérieurs qui communiquent et s'harmonisent afin de créer un cadre chaleureux pour toute la famille.
Son organisation fonctionnelle a été pensée pour favoriser l'espace jour en lui offrant une luminosité profitable à chaque saison.
Votre constructeur Alpha Constructions vous propose plusieurs déclinaisons personnalisables en fonction de vos souhaits !



