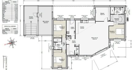
Maison 133 m² - 275BX240660
Plan maison 5 pièces 3 chambres Surface maison 130 à 135 m2
Maison 133 m² - 275BX240660
Plan sur mesure de 3 chambres avec un bureau, un garage + carport
Maison BERMAX CONSTRUCTION de plain pied d'une surface habitable de 133m².
Comprenant deux coins nuit avec suite parentale et bureau séparé, 1 salle de bain et 1 WC.
Un garage, 1 cellier proche de la cuisine, ainsi qu'une belle entrée avec placard
Cette maison est conforme à la règlementation RE 2020.



