PP 3GI ELEGANCE
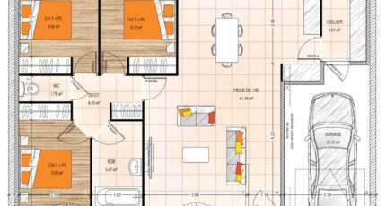
Plan maison 5 pièces 3 chambres Surface maison 85.2 m2
Cet avant projet des Maisons Bernard Jambert se compose de 3 chambres, une pièce de vie traversante et lumineuse, ainsi qu'un garage intégré de 17 m². Ce plan est parfaitement optimisé. La pièce de vie de 41 m² intègre la cuisine et l'entrée. Vous disposez également dans cette maison d'un cellier de 4.5 m² donnant l'accès au garage. Côté nuit, 3 chambres sont situées de part et d'autre de la salle de bains. Cette maison vous inspire, venez la découvrir plus en détail auprès de nos équipes. Prenez rendez-vous !



