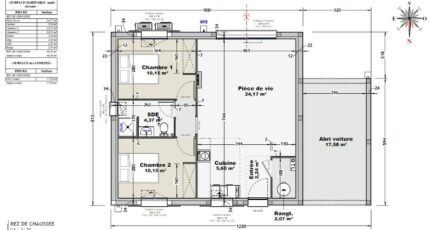
Start 60m² - 2CH - carport

Plan maison 2 pièces 2 chambres Surface maison 60 à 61 m2

Start 60m² - 2 chambres avec carport

Construire ce modèle ?

    * Champs obligatoires

    Vos informations sont traitées par HEXAOM et transmises à un conseiller commercial qui vous contactera afin de répondre à votre demande. Les plans et images présentés sur notre site sont la propriété d’HEXAOM et ne peuvent pas être reproduits sans son accord. Pour retrouver notre politique de protection des données personnelles et exercer vos droits conformément à la « loi informatique et liberté » cliquez-ici.

    Découvrez nos packs prestations