STERENN - 3 Chambres

Plan maison 4 pièces 4 chambres Surface maison 100 à 120 m2

Lumière et confort, version contemporaine

Avec son volume principal enduit blanc souligné par un bel étage bardé de bois, cette maison contemporaine joue l'équilibre entre sobriété et chaleur. Le toit à deux pans simples affirme une ligne actuelle, sans ostentation. Côté jardin, une large baie vitrée ouvre la pièce de vie sur une terrasse en bois protégée par un brise-vue, prolongeant le salon vers l'extérieur. On s'imagine profiter du soleil du matin au soir, entre coin repas, fauteuils confortables et massifs fleuris qui encadrent le jardin.
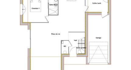
Au rez-de-chaussée, l'entrée distribue clairement les espaces : d'un côté, les WC et l'escalier ; de l'autre, la grande pièce de vie conviviale. Salon, salle à manger et cuisine se répondent dans un espace unique, baigné de lumière et directement relié à la terrasse. La cuisine communique avec un cellier isolé, lui-même connecté au garage : un circuit ultra-pratique pour décharger les courses, ranger et accéder à la voiture à l'abri. Dans le prolongement du séjour, une chambre avec salle d'eau privative permet de vivre au rez-de-chaussée comme dans une vraie suite parentale ou d'accueillir famille et amis dans d'excellentes conditions de confort.
L'étage est dédié au calme et à l'intimité. Deux chambres bien proportionnées accueillent les enfants ou les invités, tandis qu'un bureau indépendant offre un espace idéal pour le télétravail ou une future troisième chambre. Une salle de bains familiale avec double vasque et baignoire, complétée par un WC séparé, facilite le quotidien des moments du matin et du soir. Les ouvertures judicieusement placées apportent une lumière naturelle généreuse et cadrent les vues sur le jardin, tout en préservant la tranquillité de chacun. Avec Maisons de l'Avenir, cette maison bénéficie du concept Bâti-Activ pour un confort bioclimatique été comme hiver, et met à l'honneur notre expertise en bardage et ossature bois, ainsi que notre service 3-en-1 (maison, terrain, financement) pour un projet acco

Construire ce modèle ?

    * Champs obligatoires

    Vos informations sont traitées par HEXAOM et transmises à un conseiller commercial qui vous contactera afin de répondre à votre demande. Les plans et images présentés sur notre site sont la propriété d’HEXAOM et ne peuvent pas être reproduits sans son accord. Pour retrouver notre politique de protection des données personnelles et exercer vos droits conformément à la « loi informatique et liberté » cliquez-ici.

    Découvrez nos packs prestations