VILLA NEREA 90m² garage

Plan maison 90 pièces 2 chambres Surface maison 90 m2

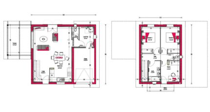
Cette villa familiale de caractère offre dans le respect de l'architecture traditionnelle basque, tout le confort d'une maison contemporaine.



Favorisant un espace de vie spacieux et ouvert sur l'extérieur, sa terrasse couverte vous invite à partager de longues soirées d'été entre amis ou en famille.


La villa Néréa propose un espace nuit au Rez-de-chaussée exclusivement réservé aux parents et à l'étage, le territoire des enfants qui se compose de 2 ou 3 chambres.

Construire ce modèle ?

    * Champs obligatoires

    Vos informations sont traitées par HEXAOM et transmises à un conseiller commercial qui vous contactera afin de répondre à votre demande. Les plans et images présentés sur notre site sont la propriété d’HEXAOM et ne peuvent pas être reproduits sans son accord. Pour retrouver notre politique de protection des données personnelles et exercer vos droits conformément à la « loi informatique et liberté » cliquez-ici.

    Découvrez nos packs prestations