1988 Nos Maisons neuves à vendre

Nos annonces de maisons neuves sont mises à jour quotidiennement.
Nous sélectionnons, avec nos partenaires fonciers, les meilleurs terrains constructibles à vendre et vous proposons nos annonces maison + terrain.

Pour rester informé des nouvelles offres de terrain et maison, créez vos alertes mails.

Constructeur de maison proche de vous

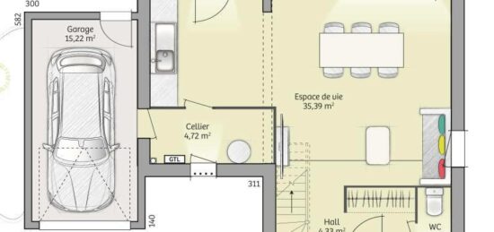
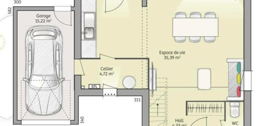
Une maison neuve est une maison qui n’a jamais été habitée. On peut aussi considérer comme une maison neuve, une construction récente ou pas encore construite. Généralement elle est issue à partir de plans modernes. Les maisons neuves offrent généralement des avantages tels que des garanties constructeur, des équipements et des installations récents et performants, une absence de problèmes potentiels liés à l’ancienneté d’une maison existante, etc. Les propriétaires peuvent également personnaliser leurs maisons neuves en choisissant les finitions, les couleurs, les matériaux, etc.

Trouver un
Terrain + maison

1988 annonces identifiées

Type de bien

Type de bien

Emplacement

Où construire ma maison

Ou, choisissez une région via la carte :

Ou bien, rechercher dans Toute la France

Caractéristiques

Caractéristiques du bien

Nombre de chambres

Plusieurs choix possibles

Nombre de pièces

Plusieurs choix possibles

Surface

Surface habitable

m2
m2
Prix

Prix