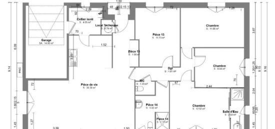
80 Nos Maisons neuves à vendre à Écully (69130)

Maison neuve à vendre à Écully. Parcourez notre sélection d'annonces de terrain + maison neuve à Écully (69 - Rhône) à faire construire. Consultez les autres annonces de terrain + maison neuve dans les villes à proximité d'Écully si vous ne trouvez pas le projet à contruire idéal, ou créez une alerte email pour recevoir nos nouveaux projets de construction.

Trouver un
Terrain + maison

80 annonces identifiées

Type de bien

Type de bien

Emplacement

Où construire ma maison

Ou, choisissez une région via la carte :

Ou bien, rechercher dans Toute la France

Caractéristiques

Caractéristiques du bien

Nombre de chambres

Plusieurs choix possibles

Nombre de pièces

Plusieurs choix possibles

Surface

Surface habitable

m2
m2
Prix

Prix