Maison neuve à
Saint-Aubin-d'Aubigné
(35250)
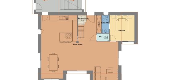
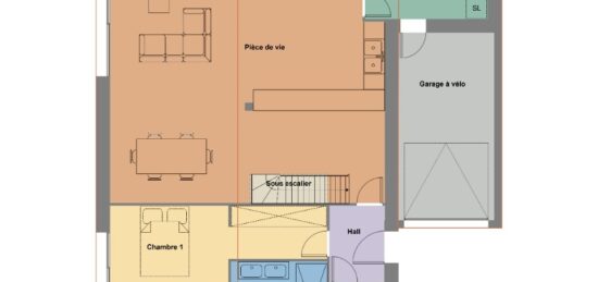
- Surface maison 75 m2
- 5 pièces
- 4 chambres
- 279 500 €
Construire une maison neuve à Liffré. Trouvez nos maisons neuves à construire sur un terrain à Liffré (35 - Ille-et-Vilaine). Consultez les autres annonces de terrain + maison neuve dans les villes à proximité de Liffré si vous ne trouvez pas le projet à contruire idéal, ou créez une alerte email pour recevoir nos nouveaux projets de construction.
169 annonces identifiées