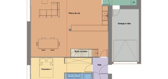
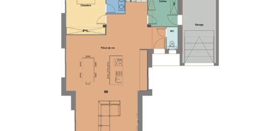
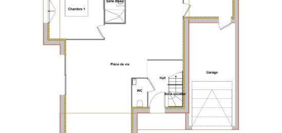
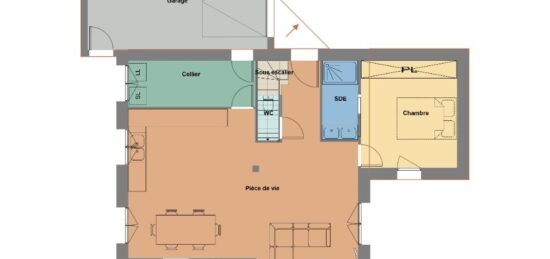
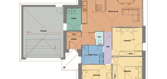
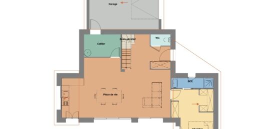
512 Nos Maisons neuves à vendre à Pluvigner (56330)

Acheter une maison neuve à Pluvigner. Parcourez notre sélection d'annonces de terrain + maison neuve à Pluvigner (56 - Morbihan) à faire construire. Consultez aussi les annonces de terrain + maison à proximité de Pluvigner ou créez une alerte email pour recevoir nos nouvelles offres.

Trouver un
Terrain + maison

512 annonces identifiées

Type de bien

Type de bien

Emplacement

Où construire ma maison

Ou, choisissez une région via la carte :

Ou bien, rechercher dans Toute la France

Caractéristiques

Caractéristiques du bien

Nombre de chambres

Plusieurs choix possibles

Nombre de pièces

Plusieurs choix possibles

Surface

Surface habitable

m2
m2
Prix

Prix