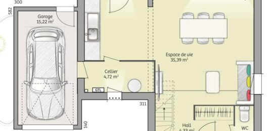
512 Nos Maisons neuves à vendre à Chartres (28000)

Construire une maison neuve à Chartres. Parcourez notre sélection d'annonces de terrain + maison neuve à Chartres (28 - Eure-et-Loir) à faire construire. Et élargissez un peu votre recherche géographique pour découvrir les autres projets de terrain + maison neuve à proximité de Chartres si besoin, ou créez une alerte email pour recevoir nos nouvelles annonces de projets de construction.

Trouver un
Terrain + maison

512 annonces identifiées

Type de bien

Type de bien

Emplacement

Où construire ma maison

Ou, choisissez une région via la carte :

Ou bien, rechercher dans Toute la France

Caractéristiques

Caractéristiques du bien

Nombre de chambres

Plusieurs choix possibles

Nombre de pièces

Plusieurs choix possibles

Surface

Surface habitable

m2
m2
Prix

Prix