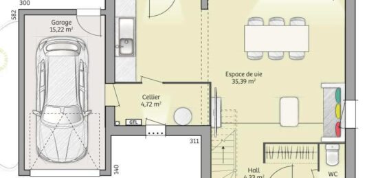
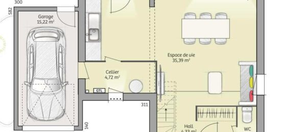
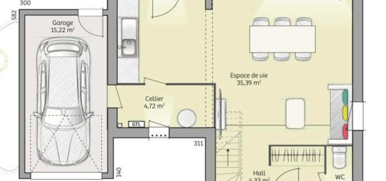
Maison neuve à
Le Mériot
(10400)
- Surface maison 105 m2
- 6 pièces
- 4 chambres
- 280 000 €
Maison neuve à vendre à Nogent-sur-Seine. Parcourez notre sélection d'annonces de terrain + maison neuve à Nogent-sur-Seine (10 - Aube) à faire construire. Consultez aussi les annonces de terrain + maison à proximité de Nogent-sur-Seine ou créez une alerte email pour recevoir nos nouvelles offres.
86 annonces identifiées