Maison neuve à
Saverne
(67700)
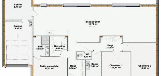
- Surface maison 120 m2
- 4 pièces
- 3 chambres
- 371 000 €
Construire une maison neuve à Sarrebourg. Découvrez nos annonces de maisons neuves à faire construire à Sarrebourg (57 - Moselle). Consultez les autres annonces de terrain + maison neuve dans les villes à proximité de Sarrebourg si vous ne trouvez pas le projet à contruire idéal, ou créez une alerte email pour recevoir nos nouveaux projets de construction.
4 annonces identifiées