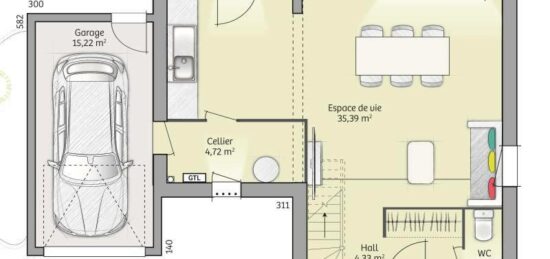
1881 Nos Maisons neuves à vendre dans l'Oise

Acheter une maison neuve dans l'Oise. Parcourez notre sélection d'annonces de terrain + maison neuve dans l'Oise à faire construire.

Trouver un
Terrain + maison

1881 annonces identifiées

Type de bien

Type de bien

Emplacement

Où construire ma maison

Ou, choisissez une région via la carte :

Ou bien, rechercher dans Toute la France

Caractéristiques

Caractéristiques du bien

Nombre de chambres

Plusieurs choix possibles

Nombre de pièces

Plusieurs choix possibles

Surface

Surface habitable

m2
m2
Prix

Prix