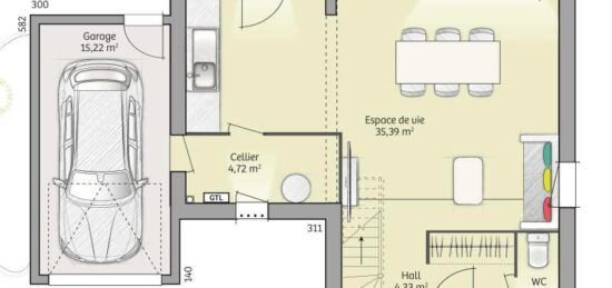
1002 Nos Maisons neuves à vendre à Épinay-sous-Sénart (91860)

Acheter une maison neuve à Épinay-sous-Sénart. Découvrez nos annonces de maisons neuves à faire construire à Épinay-sous-Sénart (91 - Essonne). Consultez aussi les annonces de terrain + maison à proximité d'Épinay-sous-Sénart ou créez une alerte email pour recevoir nos nouvelles offres.

Trouver un
Terrain + maison

1002 annonces identifiées

Type de bien

Type de bien

Emplacement

Où construire ma maison

Ou, choisissez une région via la carte :

Ou bien, rechercher dans Toute la France

Caractéristiques

Caractéristiques du bien

Nombre de chambres

Plusieurs choix possibles

Nombre de pièces

Plusieurs choix possibles

Surface

Surface habitable

m2
m2
Prix

Prix