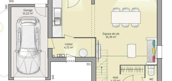
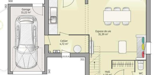
Maison neuve à
Yerres
(91330)
- Surface maison 140 m2
- 8 pièces
- 5 chambres
- 502 000 €
Acheter une maison neuve à Montgeron. Parcourez notre sélection d'annonces de terrain + maison neuve à Montgeron (91 - Essonne) à faire construire. Consultez aussi les annonces de terrain + maison à proximité de Montgeron ou créez une alerte email pour recevoir nos nouvelles offres.
929 annonces identifiées