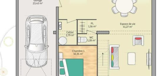
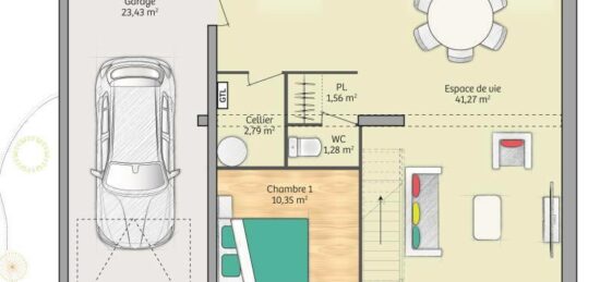
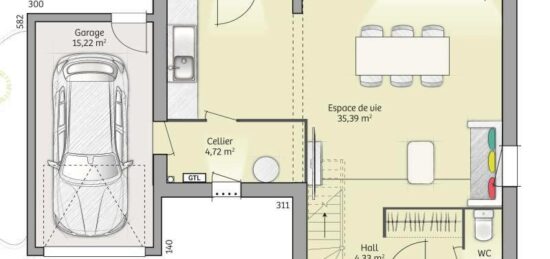
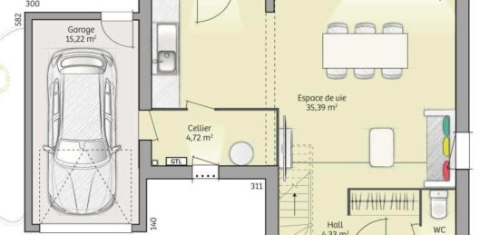
650 Nos Maisons neuves à vendre à la Chapelle-la-Reine (77760)

Construire une maison neuve à La Chapelle-la-Reine. Découvrez nos annonces de maisons neuves à faire construire à La Chapelle-la-Reine (77 - Seine-et-Marne). Consultez aussi les annonces de terrain + maison à proximité de La Chapelle-la-Reine ou créez une alerte email pour recevoir nos nouvelles offres.

Trouver un
Terrain + maison

650 annonces identifiées

Type de bien

Type de bien

Emplacement

Où construire ma maison

Ou, choisissez une région via la carte :

Ou bien, rechercher dans Toute la France

Caractéristiques

Caractéristiques du bien

Nombre de chambres

Plusieurs choix possibles

Nombre de pièces

Plusieurs choix possibles

Surface

Surface habitable

m2
m2
Prix

Prix