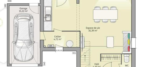
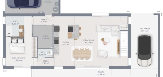
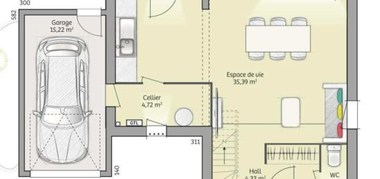
1754 Nos Maisons neuves à vendre à Meaux (77100)

Acheter une maison neuve à Meaux. Trouvez nos maisons neuves à construire sur un terrain à Meaux (77 - Seine-et-Marne). Consultez aussi les annonces de terrain + maison à proximité de Meaux ou créez une alerte email pour recevoir nos nouvelles offres.

Trouver un
Terrain + maison

1754 annonces identifiées

Type de bien

Type de bien

Emplacement

Où construire ma maison

Ou, choisissez une région via la carte :

Ou bien, rechercher dans Toute la France

Caractéristiques

Caractéristiques du bien

Nombre de chambres

Plusieurs choix possibles

Nombre de pièces

Plusieurs choix possibles

Surface

Surface habitable

m2
m2
Prix

Prix