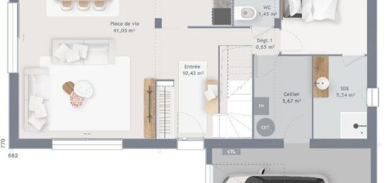
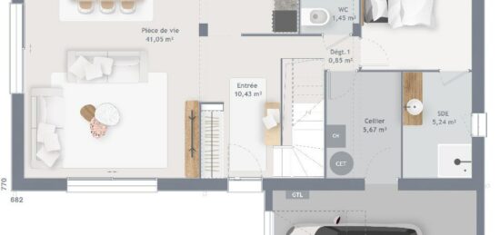
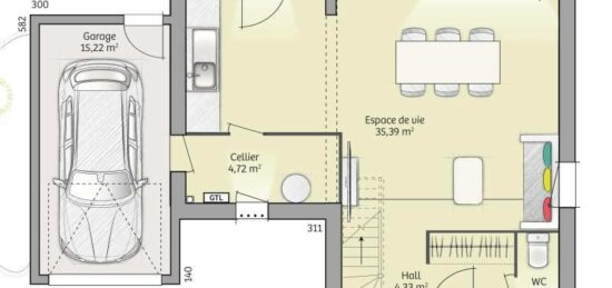
1130 Nos Maisons neuves à vendre à Boissy-Saint-Léger (94470)

Acheter une maison neuve à Boissy-Saint-Léger. Parcourez notre sélection d'annonces de terrain + maison neuve à Boissy-Saint-Léger (94 - Val-de-Marne) à faire construire. Consultez les autres annonces de terrain + maison neuve dans les villes à proximité de Boissy-Saint-Léger si vous ne trouvez pas le projet à contruire idéal, ou créez une alerte email pour recevoir nos nouveaux projets de construction.

Trouver un
Terrain + maison

1130 annonces identifiées

Type de bien

Type de bien

Emplacement

Où construire ma maison

Ou, choisissez une région via la carte :

Ou bien, rechercher dans Toute la France

Caractéristiques

Caractéristiques du bien

Nombre de chambres

Plusieurs choix possibles

Nombre de pièces

Plusieurs choix possibles

Surface

Surface habitable

m2
m2
Prix

Prix