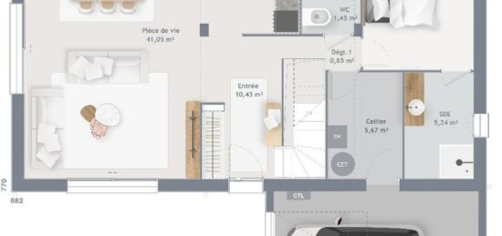
665 Nos Maisons neuves à vendre à Haÿ-les-Roses (94240)

Acheter une maison neuve à l'Haÿ-les-Roses. Découvrez nos annonces de maisons neuves à faire construire à l'Haÿ-les-Roses (94 - Val-de-Marne). Et élargissez un peu votre recherche géographique pour découvrir les autres projets de terrain + maison neuve à proximité de l'Haÿ-les-Roses si besoin, ou créez une alerte email pour recevoir nos nouvelles annonces de projets de construction.

Trouver un
Terrain + maison

665 annonces identifiées

Type de bien

Type de bien

Emplacement

Où construire ma maison

Ou, choisissez une région via la carte :

Ou bien, rechercher dans Toute la France

Caractéristiques

Caractéristiques du bien

Nombre de chambres

Plusieurs choix possibles

Nombre de pièces

Plusieurs choix possibles

Surface

Surface habitable

m2
m2
Prix

Prix