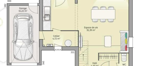
918 Nos Maisons neuves à vendre à Villeneuve-Saint-Georges (94190)

Acheter une maison neuve à Villeneuve-Saint-Georges. Trouvez nos maisons neuves à construire sur un terrain à Villeneuve-Saint-Georges (94 - Val-de-Marne). Consultez les autres annonces de terrain + maison neuve dans les villes à proximité de Villeneuve-Saint-Georges si vous ne trouvez pas le projet à contruire idéal, ou créez une alerte email pour recevoir nos nouveaux projets de construction.

Trouver un
Terrain + maison

918 annonces identifiées

Type de bien

Type de bien

Emplacement

Où construire ma maison

Ou, choisissez une région via la carte :

Ou bien, rechercher dans Toute la France

Caractéristiques

Caractéristiques du bien

Nombre de chambres

Plusieurs choix possibles

Nombre de pièces

Plusieurs choix possibles

Surface

Surface habitable

m2
m2
Prix

Prix