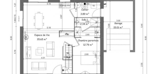
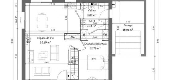
45 Nos Maisons neuves à vendre à Isigny-sur-Mer (14230)

Maison neuve à vendre à Isigny-sur-Mer. Parcourez notre sélection d'annonces de terrain + maison neuve à Isigny-sur-Mer (14 - Calvados) à faire construire. Et élargissez un peu votre recherche géographique pour découvrir les autres projets de terrain + maison neuve à proximité d'Isigny-sur-Mer si besoin, ou créez une alerte email pour recevoir nos nouvelles annonces de projets de construction.

Trouver un
Terrain + maison

45 annonces identifiées

Type de bien

Type de bien

Emplacement

Où construire ma maison

Ou, choisissez une région via la carte :

Ou bien, rechercher dans Toute la France

Caractéristiques

Caractéristiques du bien

Nombre de chambres

Plusieurs choix possibles

Nombre de pièces

Plusieurs choix possibles

Surface

Surface habitable

m2
m2
Prix

Prix