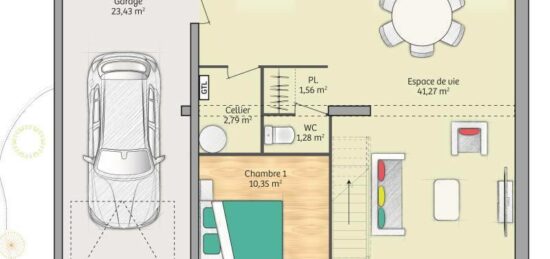
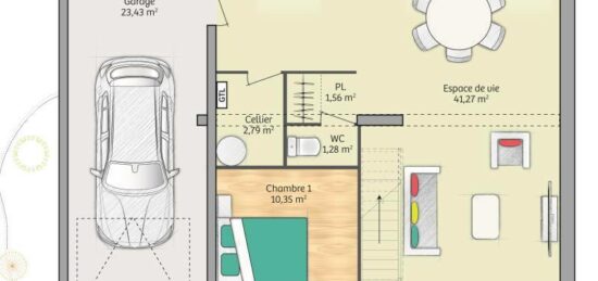
241 Nos Maisons neuves à vendre aux Andelys (27700)

Acheter une maison neuve aux Andelys. Trouvez nos maisons neuves à construire sur un terrain aux Andelys (27 - Eure). Consultez aussi les annonces de terrain + maison à proximité des Andelys ou créez une alerte email pour recevoir nos nouvelles offres.

Trouver un
Terrain + maison

241 annonces identifiées

Type de bien

Type de bien

Emplacement

Où construire ma maison

Ou, choisissez une région via la carte :

Ou bien, rechercher dans Toute la France

Caractéristiques

Caractéristiques du bien

Nombre de chambres

Plusieurs choix possibles

Nombre de pièces

Plusieurs choix possibles

Surface

Surface habitable

m2
m2
Prix

Prix