Maison neuve à
Arcizac-Adour
(65360)
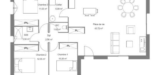
- Surface maison 90 m2
- 4 pièces
- 3 chambres
- 274 500 €
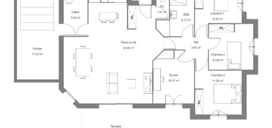
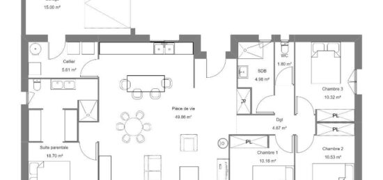
Maison neuve à vendre à Bagnères-de-Bigorre. Parcourez notre sélection d'annonces de terrain + maison neuve à Bagnères-de-Bigorre (65 - Hautes-Pyrénées) à faire construire. Consultez les autres annonces de terrain + maison neuve dans les villes à proximité de Bagnères-de-Bigorre si vous ne trouvez pas le projet à contruire idéal, ou créez une alerte email pour recevoir nos nouveaux projets de construction.
25 annonces identifiées