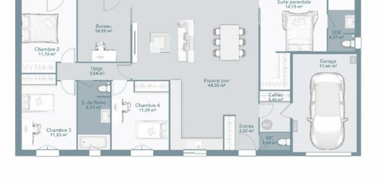
Maison neuve à
Notre-Dame-de-Londres
(34380)
- Surface maison 145 m2
- 7 pièces
- 5 chambres
- 529 000 €
Construire une maison neuve à Ganges. Découvrez nos annonces de maisons neuves à faire construire à Ganges (34 - Hérault). Consultez aussi les annonces de terrain + maison à proximité de Ganges ou créez une alerte email pour recevoir nos nouvelles offres.
67 annonces identifiées