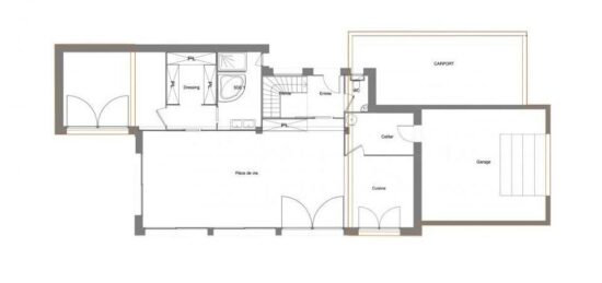
453 Nos Maisons neuves à vendre à la Haie-Fouassière (44690)

Construire une maison neuve à La Haie-Fouassière. Trouvez nos maisons neuves à construire sur un terrain à La Haie-Fouassière (44 - Loire-Atlantique). Consultez les autres annonces de terrain + maison neuve dans les villes à proximité de La Haie-Fouassière si vous ne trouvez pas le projet à contruire idéal, ou créez une alerte email pour recevoir nos nouveaux projets de construction.

Trouver un
Terrain + maison

453 annonces identifiées

Type de bien

Type de bien

Emplacement

Où construire ma maison

Ou, choisissez une région via la carte :

Ou bien, rechercher dans Toute la France

Caractéristiques

Caractéristiques du bien

Nombre de chambres

Plusieurs choix possibles

Nombre de pièces

Plusieurs choix possibles

Surface

Surface habitable

m2
m2
Prix

Prix