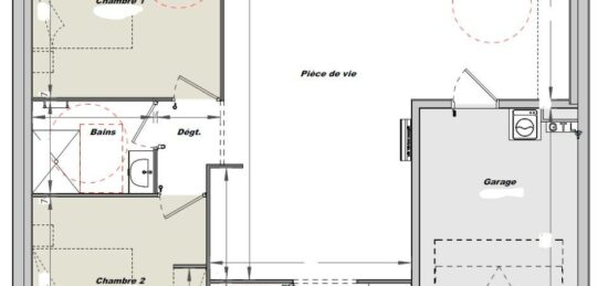
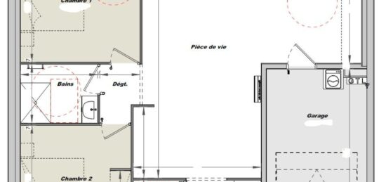
16 Nos Maisons neuves à vendre aux Herbiers (85500)

Maison neuve à vendre aux Herbiers. Trouvez nos maisons neuves à construire sur un terrain aux Herbiers (85 - Vendée). Consultez aussi les annonces de terrain + maison à proximité des Herbiers ou créez une alerte email pour recevoir nos nouvelles offres.

Trouver un
Terrain + maison

16 annonces identifiées

Type de bien

Type de bien

Emplacement

Où construire ma maison

Ou, choisissez une région via la carte :

Ou bien, rechercher dans Toute la France

Caractéristiques

Caractéristiques du bien

Nombre de chambres

Plusieurs choix possibles

Nombre de pièces

Plusieurs choix possibles

Surface

Surface habitable

m2
m2
Prix

Prix