Faire construire sa maison à Dardilly
Extension ou rénovation, quel est le projet de ce client ?
Les propriétaires de cette maison de famille, un jeune couple, ont pour projet de vie de rester à Frontenas dans le Beaujolais, sur cette parcelle de 968 m². Leur maison est vétuste sans véritable confort, ils ont même songé à la faire démolir pour reconstruire. La maison composée de quatre petites chambres séparées des pièces de vie par un grand couloir n’est plus fonctionnelle.
Après réflexion, ils consultent Maisons France Confort pour la rénover complètement et l’agrandir. La rénovation globale et l’extension permettent d’améliorer le confort et de réaménager la maison de manière plus pratique.
L’intervention de nos équipes
La maison existante est complètement rénovée. Les murs extérieurs et des combles perdus sont isolés avec les normes thermiques actuelles. la refonte complète de l’espace dans le bâti existant avec la réfection des doublages et cloisons a permis d’optimiser le confort thermique global sur la partie existante. Les fenêtres existantes sont toutes remplacées. Une Pompe à Chaleur est installée pour assurer le chauffage et la production d’eau chaude.
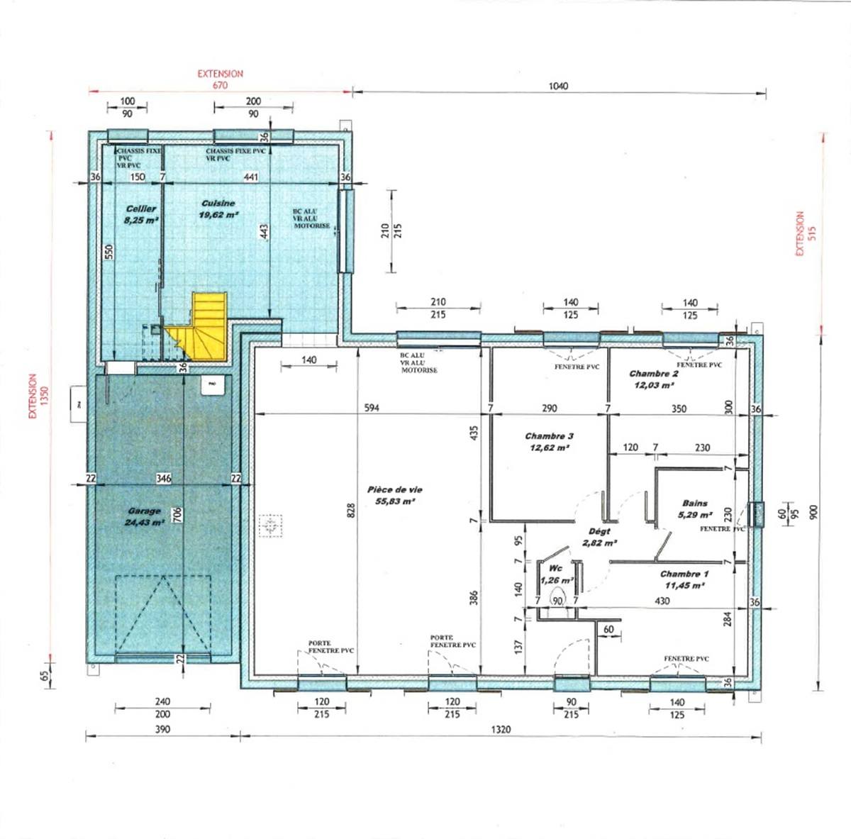
Le garage existant est démoli. Un nouveau garage, et une cuisine et une mezzanine en combles aménageables sont construits en remplacement.
Demander une étude et un devis pour projet !
Les points clés de ce projet d'extension
- La maison d’origine :
- Maison de 1982.
- Située à Frontenas (69620) dans le Beaujolais au nord du département du Rhône et de Lyon.
- Surface d’origine 101,61 m² sur 1 niveau.
- Extension en surface habitable de 47,49 m² sur deux niveaux, plus un garage de 24,43 m².
- Budget : demandez votre devis !
- Déclaration préalable

Avant travaux

Après travaux

Plan du projet

Après travaux

Après travaux

DPE (après travaux)
Les étapes de ce projet d’agrandissement
Détail des travaux réalisés :
- La définition du projet avec un interlocuteur unique : c'est un accompagnement technique avec la réalisation d’un avant-projet et d’une notice descriptive.
- L'accompagnement administratif : comprend les démarches administratives pour l’obtention des autorisations réglementaires : le permis de construire ou la déclaration préalable de travaux en mairie.
- La réalisation des travaux : correspond à l'organisation du projet, la gestion et la coordination des travaux ainsi que la relation continue avec le client. La durée du chantier est optimisée.
- Le bilan après travaux : c'est la création de surface habitable et la valorisation du bien dans le respect du style traditionnel.
Pourquoi opter pour une rénovation globale et une extension de maison ?
1 Les propriétaires bénéficient à présent d’une maison rénovée. Les matériaux et équipements actuels apportent un confort performant à cette maison des années 80. L’étiquette énergétique passe de G à C.
2 L’extension permet d’agrandir la surface habitable et de redistribuer les espaces pour plus de fonctionnalité et de confort de vie.
3 La création et l’agrandissement d’ouvertures ont permis l’amélioration du confort lumineux.
4 La reprise du drainage permet d’améliorer l’évacuation des eaux pluviales et de préserver la qualité de l’enveloppe du bâtiment.