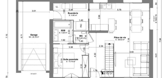
31 Nos Maisons neuves à vendre à Mâcon (71000)

Construire une maison neuve à Mâcon. Découvrez nos annonces de maisons neuves à faire construire à Mâcon (71 - Saône-et-Loire). Consultez aussi les annonces de terrain + maison à proximité de Mâcon ou créez une alerte email pour recevoir nos nouvelles offres.

Trouver un
Terrain + maison

31 annonces identifiées

Type de bien

Type de bien

Emplacement

Où construire ma maison

Ou, choisissez une région via la carte :

Ou bien, rechercher dans Toute la France

Caractéristiques

Caractéristiques du bien

Nombre de chambres

Plusieurs choix possibles

Nombre de pièces

Plusieurs choix possibles

Surface

Surface habitable

m2
m2
Prix

Prix