Maison neuve à
Charnay-lès-Mâcon
(71850) Référence :
SG2624_2
Prix du projet : Maison avec Terrain
prix 332 500 €
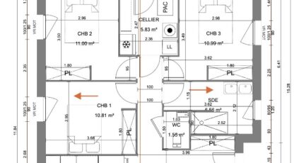
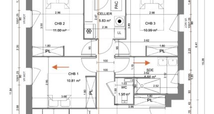
- 4 pièces
- 3 chambres
- Surface maison 87 m2
VENTE : maison de 4 pièces (87 m²) à Charnay-lès-Mâcon
PROCHE DE MÂCON - MAISON 4 PIÈCES NEUVE
À vendre à quelques kilomètres de Mâcon, à Charnay-lès-Mâcon (71850), nous sommes heureux de vous proposer cette maison de 4 pièces de plain-pied de 87 m² et de 827 m² de terrain. Elle propose trois chambres, une cuisine et une salle de bains.
La maison est neuve.
L'École Maternelle Josephine Baker est implantée à moins de 10 minutes à pied. Niveau transports en commun, on trouve quatre gares à moins de 10 minutes en voiture. Les autoroutes A6, A406 et A40 et la nationale N79 sont accessibles à moins de 6 km.
Son prix de vente est de 332 500 €.
Contactez notre agence (GABRILLARGUES Sébastien : 06-81-77-73-67) pour obtenir de plus amples renseignements sur la maison. Maisons France Confort Bourg-en-Bresse vous accompagne dans tous vos projets immobiliers et dans toutes vos démarches.
Annonce proposée par un Agent Commercial Partenaire.
Mentions légales
Terrain proposé par un partenaire foncier selon disponibilités et autorisation de publicité au prix de 158 500 €. Hors droit d'enregistrement et frais de notaire. Terrain + Maison proposés au prix de 332 500 € (Hors branchements et raccordements, papiers peints, peintures, revêtement de sol dans les chambres. Tarif modifiable sans préavis). Etiquette énergie : A. Différents modèles disponibles pour ce terrain. Assurances et garanties du constructeur (RC professionnelle, décennale, dommage ouvrage, garantie de remboursement de l'acompte, livraison à prix et délai convenu) : https://www.maisons-france-confort.fr/mentions-legales/. HEXAOM Services est enregistré auprès de l'ORIAS en tant que Courtier en financement, Niveau 1, sous le numéro 14001345.Agence Maisons France Confort de Bourg-en-Bresse (01000)
- Téléphone :
- 04 74 14 04 47
- Adressse :
- 20, rue Gabriel Vicaire
01000 Bourg-en-Bresse, France