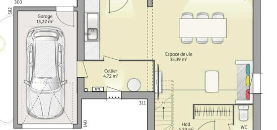
1215 Nos Maisons neuves à vendre à Aulnay-sous-Bois (93600)

Acheter une maison neuve à Aulnay-sous-Bois. Trouvez nos maisons neuves à construire sur un terrain à Aulnay-sous-Bois (93 - Seine-Saint-Denis). Consultez les autres annonces de terrain + maison neuve dans les villes à proximité d'Aulnay-sous-Bois si vous ne trouvez pas le projet à contruire idéal, ou créez une alerte email pour recevoir nos nouveaux projets de construction.

Trouver un
Terrain + maison

1215 annonces identifiées

Type de bien

Type de bien

Emplacement

Où construire ma maison

Ou, choisissez une région via la carte :

Ou bien, rechercher dans Toute la France

Caractéristiques

Caractéristiques du bien

Nombre de chambres

Plusieurs choix possibles

Nombre de pièces

Plusieurs choix possibles

Surface

Surface habitable

m2
m2
Prix

Prix