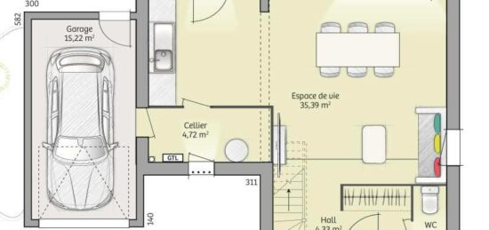
30 Nos Maisons neuves à vendre en Seine-Saint-Denis

Maison neuve à vendre en Seine-Saint-Denis. Trouvez nos maisons neuves à construire sur un terrain en Seine-Saint-Denis.

Trouver un
Terrain + maison

30 annonces identifiées

Type de bien

Type de bien

Emplacement

Où construire ma maison

Ou, choisissez une région via la carte :

Ou bien, rechercher dans Toute la France

Caractéristiques

Caractéristiques du bien

Nombre de chambres

Plusieurs choix possibles

Nombre de pièces

Plusieurs choix possibles

Surface

Surface habitable

m2
m2
Prix

Prix