Maison neuve à
Villiers-sur-Marne
(94350)
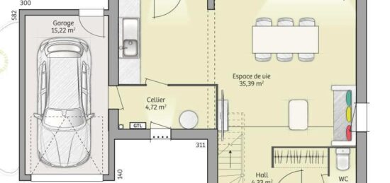
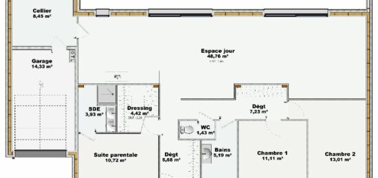
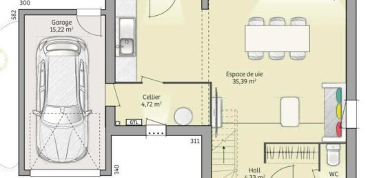
- Surface maison 114 m2
- 6 pièces
- 5 chambres
- 534 000 €
Construire une maison neuve à Noisy-le-Grand. Trouvez nos maisons neuves à construire sur un terrain à Noisy-le-Grand (93 - Seine-Saint-Denis). Consultez les autres annonces de terrain + maison neuve dans les villes à proximité de Noisy-le-Grand si vous ne trouvez pas le projet à contruire idéal, ou créez une alerte email pour recevoir nos nouveaux projets de construction.
1100 annonces identifiées