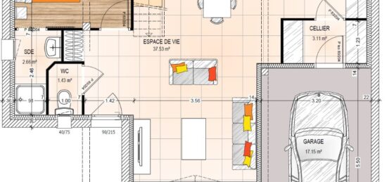
Maison neuve à
Écouflant
(49000)
- Surface maison 131 m2
- 5 pièces
- 3 chambres
- 414 600 €
Maison neuve à vendre à Écouflant. Trouvez nos maisons neuves à construire sur un terrain à Écouflant (49 - Maine-et-Loire). Et élargissez un peu votre recherche géographique pour découvrir les autres projets de terrain + maison neuve à proximité d'Écouflant si besoin, ou créez une alerte email pour recevoir nos nouvelles annonces de projets de construction.
463 annonces identifiées