Maison neuve à
Écouflant
(49000) Référence :
CP2475483_3
Prix du projet : Maison avec Terrain
prix 423 000 €
- 6 pièces
- 4 chambres
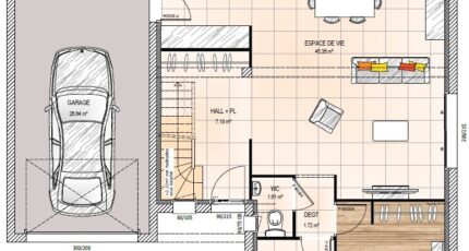
- Surface maison 124 m2
Maison F6 (124 m²) à vendre à Écouflant
EMPLACEMENT PRIVILÉGIÉ - MAISON 6 PIÈCES NEUVE
À vendre à 6 km d'Angers, venez découvrir cette maison de 6 pièces de 124 m² bénéficiant d'un emplacement privilégié dans Écouflant (49000).
Cette maison compte 2 niveaux. Elle dispose de quatre chambres, d'une cuisine et de deux salles de bains. Cette maison est neuve.
Le terrain de la propriété s'étend sur 600 m².
Le bien est situé dans un secteur recherché. Il y a l'École Maternelle Publique Belle-Branche, l'École Élémentaire Publique Belle Branche et l'École Primaire Privée Sainte Jeanne d'Arc à moins de 10 minutes à pied. Niveau transports en commun, on trouve cinq gares à moins de 10 minutes en voiture. Les autoroutes A11, A87N et A87 sont accessibles à moins de 5 km. Il y a un tennis, une bibliothèque, une supérette et un bureau de poste dans les environs.
Il est à vendre pour la somme de 423 000 €.
Prenez contact avec notre agence (Carole PORCHER : 06-88-98-52-77) pour tout renseignement sur la maison ou sur les démarches à suivre.
Mentions légales
Terrain proposé par un partenaire foncier selon disponibilités et autorisation de publicité au prix de 150 000 €. Hors droit d'enregistrement et frais de notaire. Terrain + Maison proposés au prix de 423 000 € (Hors branchements et raccordements, papiers peints, peintures, revêtement de sol dans les chambres. Tarif modifiable sans préavis). Etiquette énergie : A. Différents modèles disponibles pour ce terrain. Assurances et garanties du constructeur (RC professionnelle, décennale, dommage ouvrage, garantie de remboursement de l'acompte, livraison à prix et délai convenu) : https://www.maisons-bernard-jambert.com/informations-legales/.Agence Maisons Bernard Jambert de Angers (49000)
- Téléphone :
- 02 41 77 17 17
- Adressse :
- 55 bd Eugène Chaumin
49000 Angers, France