Maison neuve à
Achères (18250) Référence : FH2448750_5

Prix du projet : Maison avec Terrain

prix 254 671 €

  • 4 pièces
  • 3 chambres
  • Surface maison 85 m2

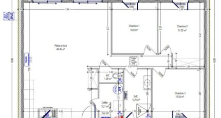
VENTE d'une maison de 4 pièces (85 m²) à Achères
PROCHE DE BOURGES - MAISON 4 PIÈCES NEUVE
À vendre à 23 km de Bourges, Maisons Bruno Petit MJB Bourges vous propose cette maison de 4 pièces de plain-pied de 85 m² à Achères (18250).
Son intérieur comporte trois chambres, une cuisine et une salle de bains. La maison est neuve.
Le terrain du bien est de 2 500 m².
Il y a une école élémentaire dans le quartier.
Il est à vendre pour la somme de 254 671 €.
N'hésitez pas à prendre contact avec notre agence (Fabien HELLELI : 02-48-50-26-25) pour obtenir de plus amples informations sur cette maison. Maisons Bruno Petit MJB Bourges est là pour vous accompagner dans toutes vos démarches.

Mentions légales

Terrain proposé par un partenaire foncier selon disponibilités et autorisation de publicité au prix de 29 000 €. Hors droit d'enregistrement et frais de notaire. Terrain + Maison proposés au prix de 254 671 € (Hors branchements et raccordements, papiers peints, peintures, revêtement de sol dans les chambres. Tarif modifiable sans préavis). Etiquette énergie : A. Différents modèles disponibles pour ce terrain. Assurances et garanties du constructeur (RC professionnelle, décennale, dommage ouvrage, garantie de remboursement de l'acompte, livraison à prix et délai convenu) : https://www.maisons-brunopetit.fr/mentions-legales/.

Contactez l'agence de Bourges

02 48 50 26 25

    * Champs obligatoires

    Vos informations sont traitées par HEXAOM et transmises à un conseiller commercial qui vous contactera afin de répondre à votre demande. Les plans et images présentés sur notre site sont la propriété d’HEXAOM et ne peuvent pas être reproduits sans son accord. Pour retrouver notre politique de protection des données personnelles et exercer vos droits conformément à la « loi informatique et liberté » cliquez-ici.