Maison neuve à
Agde
(34300) Référence :
AB2467936_2
Prix du projet : Maison avec Terrain
prix 780 000 €
- 5 pièces
- 4 chambres
- Surface maison 108 m2
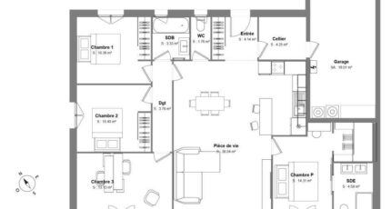
PROJET DE CONSTRUCTION - Maison de 5 pièces (108 m²) à Agde
EMPLACEMENT PRIVILÉGIÉ - MAISON 5 PIÈCES
En vente : sur le littoral méditerranéen, notre agence Maisons France Confort Béziers est heureuse de vous proposer cette maison de 5 pièces de plain-pied de 108 m² et de 1 301 m² de terrain, bénéficiant d'un emplacement d'exception dans Agde (34300).
Elle comporte quatre chambres, une cuisine, un cellier et deux salles de bains + GARAGE.
(Carrelage inclus dans toutes les pièces / Raccordements inclus / Gainable compris).
La maison est située dans un secteur recherché. Plusieurs établissements scolaires (maternelle, élémentaire, primaire et collège) sont implantés à moins de 10 minutes à pied. Niveau transports en commun, il y a les gares Agde, Vias et Marseillan Plage à moins de 10 minutes en voiture. L'autoroute A9 est accessible à 9 km. On trouve une bibliothèque, un tennis, des commerces, trois supérettes, un bureau de poste, des boucheries-charcuteries et des épiceries à quelques minutes.
Elle est à vendre pour la somme de 780 000 €.
Pour plus d'information contacter Anthony BALLESTER 06 27 21 51 55 Maisons France Confort Béziers pour échanger sur votre projet et réaliser une étude gratuite. (Plan personnalisable). Tous nos ouvrages sont réalisés sur-mesure en fonction de vos attentes et de nos échanges avec vous ainsi que dans le respect de la règlementation RE 2020. Ce projet comporte les garanties suivantes: Contrat de construction CCMI. Dommage/Ouvrage. RC Garantie décennale. Parfaite achèvement. Etude de sol G2. Prix et délais convenu. Garantie de livraison. Garantie financière Pour votre tranquillité nous nous occupons de toutes les formalités administratives.
Mentions légales
Terrain proposé par un partenaire foncier selon disponibilités et autorisation de publicité au prix de 600 000 €. Hors droit d'enregistrement et frais de notaire. Terrain + Maison proposés au prix de 780 000 € (Hors branchements et raccordements, papiers peints, peintures, revêtement de sol dans les chambres. Tarif modifiable sans préavis). Etiquette énergie : A. Différents modèles disponibles pour ce terrain. Assurances et garanties du constructeur (RC professionnelle, décennale, dommage ouvrage, garantie de remboursement de l'acompte, livraison à prix et délai convenu) : https://www.maisons-france-confort.fr/mentions-legales/. HEXAOM Services est enregistré auprès de l'ORIAS en tant que Courtier en financement, Niveau 1, sous le numéro 14001345.Agence Maisons France Confort de Béziers (34500)
- Téléphone :
- 04 67 00 85 60
- Adressse :
- 66, avenue Pierre Verdier
34500 Béziers, France
