Maison neuve à 
  Agy
 (14400)  Référence :
 EH2269610_2 
Prix du projet : Maison avec Terrain
prix 209 500 €
- 5 pièces
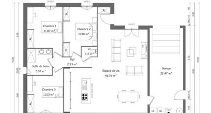
- 3 chambres
- Surface maison 95 m2
VENTE : maison F5 (95 m²) à Nonant
IDÉALEMENT SITUÉE - MAISON 5 PIÈCES NEUVE
En vente : à 12 km de la Manche et à quelques kilomètres de Caen, idéalement située dans Nonant (14400), laissez vous charmer par cette maison de 5 pièces de plain-pied de 95 m². Son intérieur dispose de trois chambres, d'une cuisine et de deux salles de bains.
Le terrain du bien est de 395 m².
La maison est neuve.
Cette maison se situe dans un secteur convoité. On trouve l'École Primaire les Prés Verts à moins de 10 minutes à pied. Niveau transports en commun, il y a deux gares (Audrieu et Bayeux) à moins de 10 minutes en voiture. Il y a un accès à la nationale N13 à 2 km.
Elle est proposée à l'achat pour 209 500 €.
Contactez Emilie HUE (tél : 06-29-81-46-66) pour tout renseignement sur la maison.
Annonce proposée par un Agent Commercial Partenaire.
Mentions légales
Terrain proposé par un partenaire foncier selon disponibilités et autorisation de publicité au prix de 59 500 €. Hors droit d'enregistrement et frais de notaire. Maison proposée, avec un contrat de construction de maison individuelle, dans le cadre de la loi du 19/12/1990, au prix de 150 000 € (Hors branchements et raccordements, papiers peints, peintures, revêtement de sol dans les chambres, qui sont chiffrés dans les travaux qui restent à charge du client. Tarif modifiable sans préavis). Étiquette énergie : A. Différents modèles disponibles pour ce terrain. Assurances et garanties du constructeur comprises (RC professionnelle, décennale, dommage ouvrage).Agence Maisons France Confort de Bayeux (14400)
- Téléphone :
- 02 31 51 20 91
- Adressse :
-  2, rue Saint Loup
 14400 Bayeux, France
 
  
  
  
  
  
 