Maison neuve à 
  Agy
 (14400)  Référence :
 JS2322660_2 
Prix du projet : Maison avec Terrain
prix 256 000 €
- 5 pièces
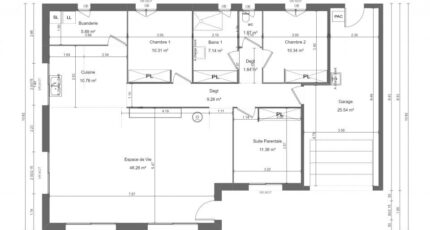
- 3 chambres
- Surface maison 110 m2
Bayeux : maison T5 (110 m²) à vendre
IDÉALEMENT SITUÉE - MAISON 5 PIÈCES NEUVE
À vendre à 9 km de la Manche et à 26 km de Caen, nous vous présentons, idéalement située dans Bayeux (14400), cette maison de 5 pièces de plain-pied de 110 m² et de 303 m² de terrain. Conçue de plain-pied, elle propose trois chambres, une cuisine et une salle de bains.
Cette maison est neuve.
Le bien se situe dans un secteur recherché. Des écoles du primaire et du secondaire se trouvent à moins de 10 minutes à pied, tout comme une structure d'accueil pour la petite enfance. Niveau transports en commun, il y a la gare Bayeux dans un rayon de 1 km. Il y a un accès à la nationale N13 à 3 km. On trouve une bibliothèque, des commerces, des boulangeries, un supermarché, un bureau de poste et des boucheries-charcuteries dans les environs. Enfin, 2 marchés animent les environs.
Il est à vendre pour la somme de 256 000 €.
Contactez Emilie HUE (06-29-81-46-66) pour toute question sur la maison ou sur les modalités de vente. Maisons France Confort Bayeux est là pour vous accompagner dans toutes vos démarches.
Annonce proposée par un Agent Commercial Partenaire.
Mentions légales
Terrain proposé par un partenaire foncier selon disponibilités et autorisation de publicité au prix de 56 000 €. Hors droit d'enregistrement et frais de notaire. Maison proposée, avec un contrat de construction de maison individuelle, dans le cadre de la loi du 19/12/1990, au prix de 200 000 € (Hors branchements et raccordements, papiers peints, peintures, revêtement de sol dans les chambres, qui sont chiffrés dans les travaux qui restent à charge du client. Tarif modifiable sans préavis). Étiquette énergie : A. Différents modèles disponibles pour ce terrain. Assurances et garanties du constructeur comprises (RC professionnelle, décennale, dommage ouvrage).Agence Maisons France Confort de Bayeux (14400)
- Téléphone :
- 02 31 51 20 91
- Adressse :
-  2, rue Saint Loup
 14400 Bayeux, France
 
  
  
  
  
 