Maison neuve à 
  Agy
 (14400)  Référence :
 JS2322660_3 
Prix du projet : Maison avec Terrain
prix 201 000 €
- 5 pièces
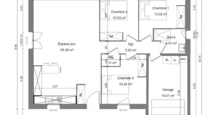
- 3 chambres
- Surface maison 85 m2
Maison F5 (85 m²) en vente à Bayeux
IDÉALEMENT SITUÉE - MAISON 5 PIÈCES NEUVE
En vente : à 9 km de la Manche et à 26 km de Caen, idéalement située dans Bayeux (14400), nous vous présentons cette maison de 5 pièces de plain-pied de 85 m². Son intérieur compte trois chambres, une cuisine et une salle de bains.
Le terrain du bien s'étend sur 303 m².
La maison est neuve.
Cette maison se trouve dans un quartier recherché. Il y a des établissements scolaires de tous niveaux à moins de 10 minutes à pied, tout comme une crèche. Niveau transports, on trouve la gare Bayeux à quelques pas du bien. On trouve un accès à la nationale N13 à 3 km. Il y a une bibliothèque, des commerces, des boulangeries, un supermarché, une supérette et un bureau de poste dans les environs. Enfin, 2 marchés animent le quartier.
Elle est proposée à l'achat pour 201 000 €.
N'hésitez pas à prendre contact avec Emilie HUE (06-29-81-46-66) pour plus de renseignements sur la maison, sur les modalités de vente ou sur les démarches à suivre.
Annonce proposée par un Agent Commercial Partenaire.
Mentions légales
Terrain proposé par un partenaire foncier selon disponibilités et autorisation de publicité au prix de 56 000 €. Hors droit d'enregistrement et frais de notaire. Maison proposée, avec un contrat de construction de maison individuelle, dans le cadre de la loi du 19/12/1990, au prix de 145 000 € (Hors branchements et raccordements, papiers peints, peintures, revêtement de sol dans les chambres, qui sont chiffrés dans les travaux qui restent à charge du client. Tarif modifiable sans préavis). Étiquette énergie : A. Différents modèles disponibles pour ce terrain. Assurances et garanties du constructeur comprises (RC professionnelle, décennale, dommage ouvrage).Agence Maisons France Confort de Bayeux (14400)
- Téléphone :
- 02 31 51 20 91
- Adressse :
-  2, rue Saint Loup
 14400 Bayeux, France
 
  
  
  
  
 