Maison neuve à
Aigrefeuille-d'Aunis
(17290) Référence :
RB2397244_2
Prix du projet : Maison avec Terrain
prix 197 000 €
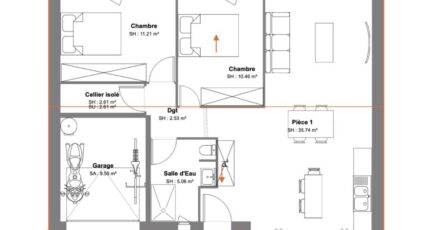
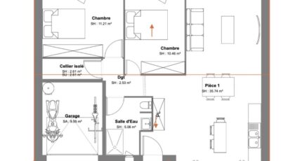
- 3 pièces
- 2 chambres
- Surface maison 70 m2
Nouveau à Aigrefeuille, votre futur projet de 3 chambres, d'une salle d'eau, un cellier et un garage, avec une agréable pièce de vie pour recevoir les amis et la famille, compris dans le prix, toutes les assurances nécessaire, les frais de notaire et les raccordements pour 197000€
.
Contactez Romuald Bruneau - O6 63 80 67 27- MAISON ACCO
Mentions légales
Terrain proposé par un partenaire foncier selon disponibilités et autorisation de publicité au prix de 59 600 €. Hors droit d'enregistrement et frais de notaire. Terrain + Maison proposés au prix de 197 000 € (Hors branchements et raccordements, papiers peints, peintures, revêtement de sol dans les chambres. Tarif modifiable sans préavis). Etiquette énergie : A. Différents modèles disponibles pour ce terrain. Assurances et garanties du constructeur (RC professionnelle, décennale, dommage ouvrage, garantie de remboursement de l'acompte, livraison à prix et délai convenu) : https://www.maisons-acco.com/informations-legales/.Agence Maisons Acco de La Jarne (17220)
- Téléphone :
- 05 46 01 50 50
- Adressse :
- 110 Route Nationale
17220 La Jarne, France
