Maison neuve à
Airan
(14370) Référence :
KD2251318_4
Prix du projet : Maison avec Terrain
prix 295 200 €
- 5 pièces
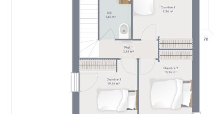
- 3 chambres
- Surface maison 90 m2
Airan : maison T5 (90 m²) à vendre
IDÉALEMENT SITUÉE - MAISON 5 PIÈCES NEUVE
À vendre : à 22 km de la Manche et à quelques kilomètres de Caen, nous vous présentons, idéalement située dans Airan (14370), cette maison de 5 pièces de 90 m² et de 478 m² de terrain.
Cette maison compte 2 niveaux. Son intérieur comporte trois chambres, une cuisine et une salle de bains. Cette maison est neuve.
La maison est située dans un secteur recherché. Il y a l'École Primaire Edmone Robert à moins de 10 minutes à pied. Niveau transports, on trouve trois gares (Moult-Argences, Mézidon-Canon et Frénouville-Cagny) à moins de 10 minutes en voiture. Il y a un accès à l'autoroute A13 à 10 km. Il y a un tennis, une boulangerie et une boucherie-charcuterie dans les environs.
Son prix de vente est de 295 200 €.
Prenez contact avec Kevin DUCHESNE (tél : 06-88-19-70-17) pour tout renseignement sur la maison ou sur les démarches à suivre. Maisons France Confort Caen est là pour vous accompagner à toutes les étapes de votre projet.
Mentions légales
Terrain proposé par un partenaire foncier selon disponibilités et autorisation de publicité au prix de 59 900 €. Hors droit d'enregistrement et frais de notaire. Maison proposée, avec un contrat de construction de maison individuelle, dans le cadre de la loi du 19/12/1990, au prix de 235 300 € (Hors branchements et raccordements, papiers peints, peintures, revêtement de sol dans les chambres, qui sont chiffrés dans les travaux qui restent à charge du client. Tarif modifiable sans préavis). Étiquette énergie : A. Différents modèles disponibles pour ce terrain. Assurances et garanties du constructeur comprises (RC professionnelle, décennale, dommage ouvrage).Agence Maisons France Confort de Caen (14000)
- Téléphone :
- 02 31 86 12 21
- Adressse :
- 11 place de la Résistance
14000 Caen, France
