Maison neuve à
Aire-sur-la-Lys
(62120) Référence :
MH2424796_1
Prix du projet : Maison avec Terrain
prix 345 000 €
- 8 pièces
- 4 chambres
- Surface maison 150 m2
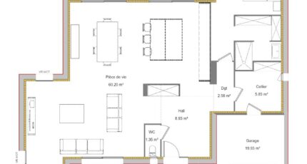
Aire-sur-la-Lys : maison T8 (150 m²) à vendre
EMPLACEMENT PRIVILÉGIÉ - MAISON 8 PIÈCES NEUVE
En vente à 46 km de la mer du Nord et proche de la Belgique, bénéficiant d'un emplacement privilégié dans Aire-sur-la-Lys (62120), nous vous présentons cette maison de 8 pièces de 150 m².
Cette maison possède 2 niveaux. Elle offre quatre chambres, une cuisine et deux salles de bains. Cette maison est neuve.
Le terrain de la propriété est de 718 m².
Elle se trouve dans un quartier attractif. Il y a tous les types d'écoles à moins de 10 minutes à pied, tout comme une crèche. Niveau transports en commun, on trouve quatre gares à moins de 10 minutes en voiture. L'autoroute A26 est accessible à 10 km
Elle est proposée à l'achat pour 345 000 €.
Contactez Marie HALFTERMEYER (O6-75-79-45-42) pour plus de renseignements sur le bien.
Mentions légales
Terrain proposé par un partenaire foncier selon disponibilités et autorisation de publicité au prix de 45 000 €. Hors droit d'enregistrement et frais de notaire. Terrain + Maison proposés au prix de 345 000 € (Hors branchements et raccordements, papiers peints, peintures, revêtement de sol dans les chambres. Tarif modifiable sans préavis). Etiquette énergie : A. Différents modèles disponibles pour ce terrain. Assurances et garanties du constructeur (RC professionnelle, décennale, dommage ouvrage, garantie de remboursement de l'acompte, livraison à prix et délai convenu) : https://www.maisons-france-confort.fr/mentions-legales/. HEXAOM Services est enregistré auprès de l'ORIAS en tant que Courtier en financement, Niveau 1, sous le numéro 14001345.Agence Maisons France Confort de Béthune (62400)
- Téléphone :
- 03 21 02 07 45
- Adressse :
- 112 bd Jean Moulin
62400 Béthune, France
