Maison neuve à
Alignan-du-Vent
(34290) Référence :
AB2375596_4
Prix du projet : Maison avec Terrain
prix 230 000 €
- 4 pièces
- 3 chambres
- Surface maison 85 m2
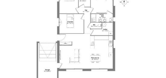
PROJET DE CONSTRUCTION - Maison T4 (85 m²) à Alignan-du-Vent
EMPLACEMENT PRIVILÉGIÉ - MAISON 4 PIÈCES
En vente : située à 22 km de la côte méditerranéenne et à 16 km de Béziers, Maisons France Confort Béziers vous présente, bénéficiant d'un emplacement privilégié dans Alignan-du-Vent (34290), cette maison de 4 pièces de plain-pied de 85 m². Conçue de plain-pied, elle est composée de trois chambres, d'une cuisine, d'un cellier et d'une salle de bains + GARAGE.
Le terrain de la maison est de 370 m².
(Carrelage inclus dans toutes les pièces / Raccordements inclus).
Ce bien est situé dans un quartier prisé. Une école primaire y est implantée. Côté transports, il y a la gare Magalas à moins de 10 minutes en voiture. Il y a un accès à l'autoroute A75 à 6 km. On trouve une bibliothèque, un tennis, un bassin de natation, trois boulangeries, deux boucheries-charcuteries et un bureau de poste à quelques minutes.
Il est à vendre pour la somme de 230 000 €.
Pour plus d'information contacter (Anthony BALLESTER : 06-27-21-51-55) Maisons France Confort Béziers pour échanger sur votre projet et réaliser une étude gratuite. (Plan personnalisable). Tous nos ouvrages sont réalisés sur-mesure en fonction de vos attentes et de nos échanges avec vous ainsi que dans le respect de la règlementation RE 2020. Ce projet comporte les garanties suivantes: Contrat de construction CCMI. Dommage/Ouvrage. RC Garantie décennale. Parfaite achèvement. Etude de sol G2. Prix et délais convenu. Garantie de livraison. Garantie financière Pour votre tranquillité nous nous occupons de toutes les formalités administratives.
Mentions légales
Terrain proposé par un partenaire foncier selon disponibilités et autorisation de publicité au prix de 90 000 €. Hors droit d'enregistrement et frais de notaire. Terrain + Maison proposés au prix de 230 000 € (Hors branchements et raccordements, papiers peints, peintures, revêtement de sol dans les chambres. Tarif modifiable sans préavis). Etiquette énergie : A. Différents modèles disponibles pour ce terrain. Assurances et garanties du constructeur (RC professionnelle, décennale, dommage ouvrage, garantie de remboursement de l'acompte, livraison à prix et délai convenu) : https://www.maisons-france-confort.fr/mentions-legales/. HEXAOM Services est enregistré auprès de l'ORIAS en tant que Courtier en financement, Niveau 1, sous le numéro 14001345.Agence Maisons France Confort de Béziers (34500)
- Téléphone :
- 04 67 00 85 60
- Adressse :
- 66, avenue Pierre Verdier
34500 Béziers, France