Maison neuve à
Alincourt
(08310) Référence :
NG2415867_8
Prix du projet : Maison avec Terrain
prix 209 000 €
- 5 pièces
- 3 chambres
- Surface maison 90 m2
À Alincourt, maison neuve (normes RE 2020) de 90m2 avec patio.
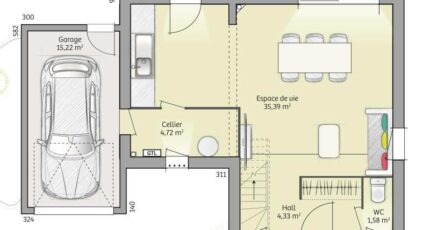
Maison de construction traditionnelle (matériaux de qualité, ossature en brique) de 3 chambres (possibilité d'une quatrième). Le modèle présenté est le modèle Open Nord ETG L GA accès Sud 90 so chic d'une surface habitable de 90m2 et compte une pièce de vie ouverte sur la cuisine, une salle de bain, 3 chambres, avec espace pour les placards, deux wc, un cellier et un garage. Il est possible de personnaliser ces plans afin qu'ils répondent parfaitement à vos attentes.
Terrain constructible de 850m2 à Alincourt parfaitement plat et idéalement situé au calme et proche de toutes les commodités.
Alincourt est une commune recherchée pour son axe direct, ses commodités à deux pas (écoles jusqu'au collège, commerces et nombreuses associations sportives et culturelles pour la famille) et sa proximité avec Reims, Charleville, Warmeriville, Le Châtelet sur Retourne, Bergnicourt, Bazancourt, Tagnon, Neuflize, Juniville, Bazancourt, Boult sur Suippe, l'Ecaille et Rethel.
Pour plus de renseignements vous pouvez me contacter , Nicolas GUILLAUME de l'agence Maisons France Confort de Cormontreuil au 07.77.79.23.59
Mentions légales
Terrain proposé par un partenaire foncier selon disponibilités et autorisation de publicité au prix de 39 900 €. Hors droit d'enregistrement et frais de notaire. Terrain + Maison proposés au prix de 209 000 € (Hors branchements et raccordements, papiers peints, peintures, revêtement de sol dans les chambres. Tarif modifiable sans préavis). Etiquette énergie : A. Différents modèles disponibles pour ce terrain. Assurances et garanties du constructeur (RC professionnelle, décennale, dommage ouvrage, garantie de remboursement de l'acompte, livraison à prix et délai convenu) : https://www.maisons-france-confort.fr/mentions-legales/. HEXAOM Services est enregistré auprès de l'ORIAS en tant que Courtier en financement, Niveau 1, sous le numéro 14001345.Agence Maisons France Confort de Cormontreuil (51350)
- Téléphone :
- 03 26 46 40 50
- Adressse :
- 8 rue des rémouleurs
51350 Cormontreuil, France
