Maison neuve à
Ambon (56190) Référence : AS2287843_3

Prix du projet : Maison avec Terrain

prix 309 000 €

  • 5 pièces
  • 4 chambres
  • Surface maison 88 m2

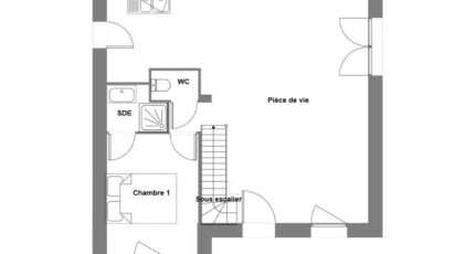
Maison T5 (88 m²) à vendre à Ambon
IDÉALEMENT SITUÉE - MAISON 5 PIÈCES NEUVE
Sur la côte atlantique et à quelques kilomètres de Vannes, nous vous proposons à vendre, idéalement située dans Ambon (56190), cette maison de 5 pièces de 88 m².
C'est une maison de 2 niveaux. Son intérieur propose quatre chambres, une cuisine et une salle de bains. La maison est neuve.
Le terrain du bien s'étend sur 365 m².
La maison se situe dans un secteur convoité. L'École Primaire Privée Sainte Jeanne d'Arc et l'École Primaire Publique l'Avocette se trouvent à moins de 10 minutes à pied. On trouve un accès à la nationale N165 à 4 km. Il y a un tennis, un commerce, une boulangerie et une supérette dans les environs.
Son prix de vente est de 309 000 €.
Contactez notre agence (SPECKHALS Amaury : 02-97-68-32-50) pour tout renseignement sur la maison, sur les modalités de vente et sur les démarches à suivre.

Mentions légales

Maisons de l’Avenir, constructeur de maisons individuelles, propose en collaboration avec ses partenaires fonciers, une sélection de terrains constructibles, selon disponibilité, pour la construction de maisons neuves définies par le constructeur, avec un contrat de construction de maison individuelle, dans le cadre de la loi du 19/12/1990. Prix net, hors frais notariés, d'enregistrement et de publicité foncière

Terrain proposé au prix de : 117 700 €

Maison proposée au prix de : 191 300 €

Etiquette énergie : A. Assurances et garanties du constructeur (RC professionnelle, décennale, dommage ouvrage, Garantie de livraison à prix et délai convenu). https://www.maisonsdelavenir.com/mentions-legales/

Contactez l'agence de Vannes

02 97 68 32 50

    * Champs obligatoires

    Vos informations sont traitées par HEXAOM et transmises à un conseiller commercial qui vous contactera afin de répondre à votre demande. Les plans et images présentés sur notre site sont la propriété d’HEXAOM et ne peuvent pas être reproduits sans son accord. Pour retrouver notre politique de protection des données personnelles et exercer vos droits conformément à la « loi informatique et liberté » cliquez-ici.