Maison neuve à
Amillis (77120) Référence : TM2317586_19

Prix du projet : Maison avec Terrain

prix 360 000 €

  • 5 pièces
  • 3 chambres
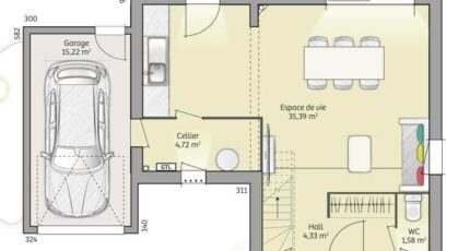
  • Surface maison 90 m2

VENTE : maison de 5 pièces (90 m²) à Amillis
MAISON 5 PIÈCES NEUVE - PROCHE DE MEAUX
À quelques minutes de la gare de Coulommiers (Paris à 1 h avec le Transilien P), ayez le coup de coeur pour cette maison de 5 pièces de 90 m² en vente à Amillis (77120).
Cette maison compte 2 niveaux. Son intérieur dispose de trois chambres, d'une cuisine et d'une salle de bains. Cette maison est neuve.
Le terrain du bien s'étend sur 300 m².
Il y a une école primaire dans le quartier. Niveau transports en commun, on trouve la gare Coulommiers à moins de 10 minutes en voiture.
Elle est proposée à l'achat pour 360 000 €.
Contactez Teddy MELES (tél : 06-17-56-83-36) pour plus d'informations sur la maison ou sur les modalités de vente. Concrétisez vos projets immobiliers avec Maisons France Confort Magny-le-Hongre.

Annonce proposée par un Agent Commercial Partenaire.

Mentions légales

Terrain proposé par un partenaire foncier selon disponibilités et autorisation de publicité au prix de 70 000 €. Hors droit d'enregistrement et frais de notaire. Maison proposée, avec un contrat de construction de maison individuelle, dans le cadre de la loi du 19/12/1990, au prix de 290 000 € (Hors branchements et raccordements, papiers peints, peintures, revêtement de sol dans les chambres, qui sont chiffrés dans les travaux qui restent à charge du client. Tarif modifiable sans préavis). Étiquette énergie : A. Différents modèles disponibles pour ce terrain. Assurances et garanties du constructeur comprises (RC professionnelle, décennale, dommage ouvrage).

Contactez l'agence de Magny-le-Hongre

01 84 80 92 96

    * Champs obligatoires

    Vos informations sont traitées par HEXAOM et transmises à un conseiller commercial qui vous contactera afin de répondre à votre demande. Les plans et images présentés sur notre site sont la propriété d’HEXAOM et ne peuvent pas être reproduits sans son accord. Pour retrouver notre politique de protection des données personnelles et exercer vos droits conformément à la « loi informatique et liberté » cliquez-ici.