Maison neuve à
Amillis
(77120) Référence :
TM2317586_20
Prix du projet : Maison avec Terrain
prix 330 000 €
- 5 pièces
- 3 chambres
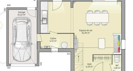
- Surface maison 90 m2
Amillis : maison de 5 pièces (90 m²) à vendre
PROCHE DE MEAUX - MAISON 5 PIÈCES NEUVE
En vente : à proximité de la gare de Coulommiers (Paris à 1 h par le Transilien P), à Amillis (77120), nous sommes ravis de vous proposer cette maison de 5 pièces de 90 m² et de 300 m² de terrain.
Il s'agit d'une maison de 2 niveaux. Son intérieur est composé de trois chambres, d'une cuisine et d'une salle de bains. La maison est neuve.
Une école primaire est implantée dans le quartier. Côté transports, il y a la gare Coulommiers à moins de 10 minutes en voiture.
Elle est à vendre pour la somme de 330 000 €.
N'hésitez pas à prendre contact avec notre agence (Teddy MELES : 06-17-56-83-36) pour plus de renseignements sur cette maison. Maisons France Confort Magny-le-Hongre vous accompagne à toutes les étapes de l'achat et dans toutes vos démarches.
Annonce proposée par un Agent Commercial Partenaire.
Mentions légales
Terrain proposé par un partenaire foncier selon disponibilités et autorisation de publicité au prix de 70 000 €. Hors droit d'enregistrement et frais de notaire. Maison proposée, avec un contrat de construction de maison individuelle, dans le cadre de la loi du 19/12/1990, au prix de 260 000 € (Hors branchements et raccordements, papiers peints, peintures, revêtement de sol dans les chambres, qui sont chiffrés dans les travaux qui restent à charge du client. Tarif modifiable sans préavis). Étiquette énergie : A. Différents modèles disponibles pour ce terrain. Assurances et garanties du constructeur comprises (RC professionnelle, décennale, dommage ouvrage).Agence Maisons France Confort de Magny-le-Hongre (77700)
- Téléphone :
- 01 84 80 92 96
- Adressse :
- 11 rue de Courtalin
77700 Magny-le-Hongre, France
