Maison neuve à
Andilly
(17230) Référence :
RB2417883_1
Prix du projet : Maison avec Terrain
prix 210 000 €
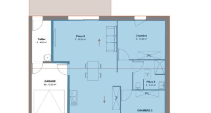
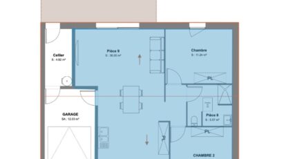
- 3 pièces
- 2 chambres
- Surface maison 70 m2
NOUVEAU à Vendre à Villedoux, une construction de 2 chambres, d'une salle d'eau avec douche à l'italienne, un garage et un salon séjour cuisine très agréable .
Chauffage par climatisation, revêtements de sols, peintures , toutes assurances, frais de notaire et raccordements inclus pour 210000€.
Contactez Romuald Bruneau - O6 63 80 67 27 - MAISON ACCO
Mentions légales
Terrain proposé par un partenaire foncier selon disponibilités et autorisation de publicité au prix de 69 500 €. Hors droit d'enregistrement et frais de notaire. Terrain + Maison proposés au prix de 210 000 € (Hors branchements et raccordements, papiers peints, peintures, revêtement de sol dans les chambres. Tarif modifiable sans préavis). Etiquette énergie : A. Différents modèles disponibles pour ce terrain. Assurances et garanties du constructeur (RC professionnelle, décennale, dommage ouvrage, garantie de remboursement de l'acompte, livraison à prix et délai convenu) : https://www.maisons-acco.com/informations-legales/.Agence Maisons Acco de La Jarne (17220)
- Téléphone :
- 05 46 01 50 50
- Adressse :
- 110 Route Nationale
17220 La Jarne, France
